Budynek magazynowo-biurowy
Budynek magazynowo-biurowy, dwukondygnacyjny, zaprojektowany z czytelnym podziałem na 2 funkcje: biurową i magazynową. Program użytkowy obiektu dostosowany do jego wielkości, przeznaczenia oraz indywidualnych oczekiwań i potrzeb inwestora.
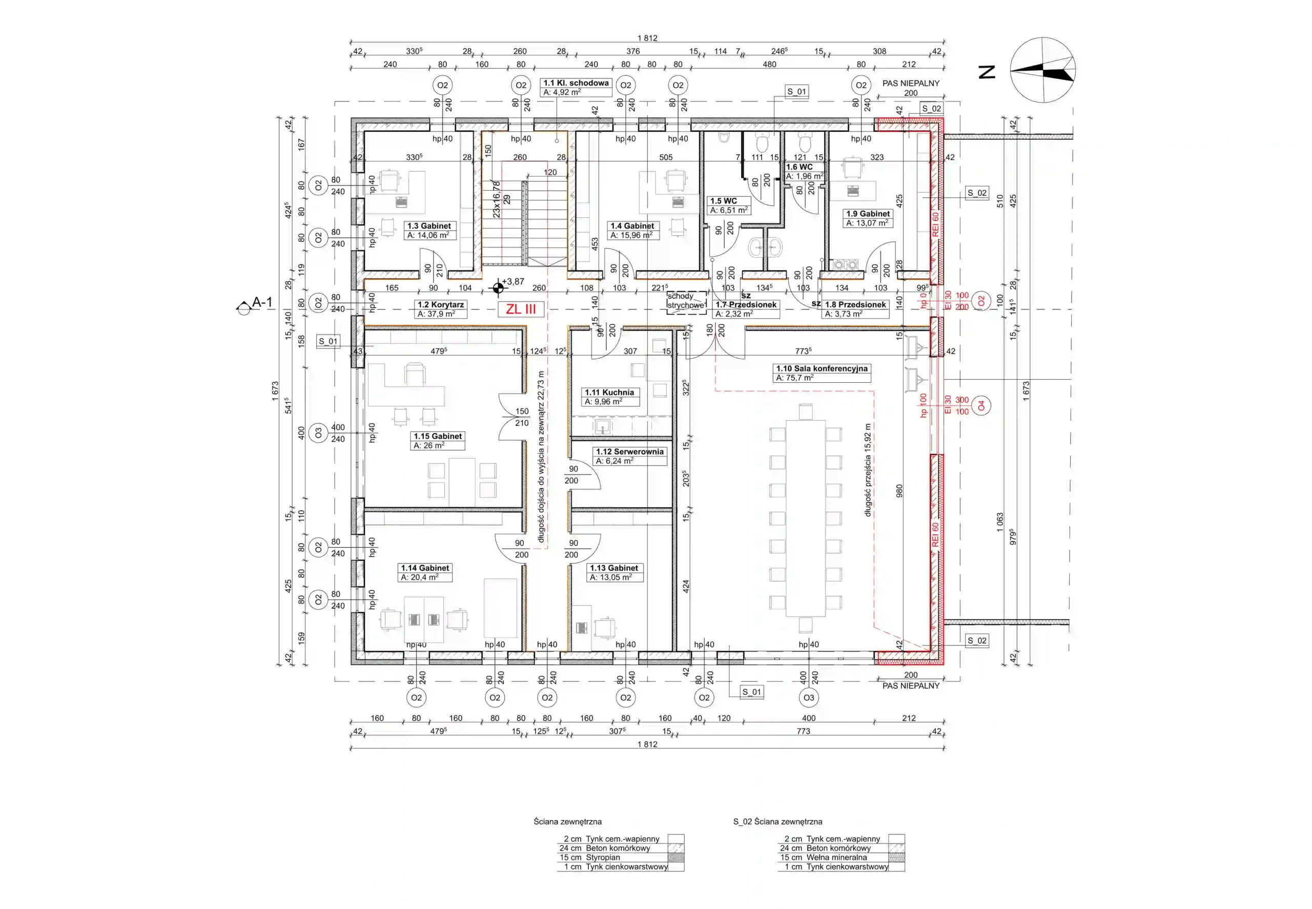
Część biurowa z pomieszczeniami pomocniczymi dla pracowników administracyjnych – 2- kondygnacyjna, w formie prostopadłościanu na planie zbliżonym do kwadratu, wykonana w konstrukcji tradycyjnej murowanej, przekryta dachem 2-spadowym. W poziomie parteru zastosowano osiowe wcięcie w elewacji, zapewniające osłonę głównego wejścia do budynku.
Część magazynowa z pomieszczeniami pomocniczymi dla pracowników pracujących w terenie, – 1-kondygnacyjna w formie prostopadłościanu na planie prostokąta, wykonana w konstrukcji stalowej, przekryta dachem 2-spadowym. Całość wykończona płytą warstwową.
Projektanci obiektu:
mgr inż. arch. Katarzyna Bezpalko
mgr inż. arch. Katarzyna Szczęsna


Szczegóły projektu
-
Wymiary zewnętrzne:
o część biurowa = 18,12m x 16,73m
o część magazynowa = 41,16m x 15,00m -
Powierzchnia użytkowa:
o część biurowa = 492,17m²
o część magazynowa = 601,32m² - Powierzchnia zabudowy = 920,59 m2
-
Kubatura:
o część biurowa = 2589,99m3
o część magazynowa = 4531,72m3



